DN15-50mm, threads end
Multi-jet
Single-jet
Rotary Piston
Bypass
DN50-500, Flanged end
Accessories
 
Single-jet
 
CD97TAR/LD-15~25E/G (with pulser)
 

CD97TAR-15E/G series is an inferential, single-jet type, dry dial (5 digits)cold water meter , with the lower magnet fitted directly to the fan wheel which is the only moving part submerged in water, therefore the meter is ideally suitable for operating with hard and scalling water with sand in suspension without the rapid deterioration of gears which in traditional designs are submerged in water.
 
SPECIALITY:
*Magnetic shield structure, with which the water meter can not be influenced by outside magnetic fields.
*With the pulse device, and the measured water volume of per pulse may be 1l/pulse, 1l/pulse or 1l/pulse.
* If replaced with the appropriate materials, it can be used for the hot water meter (the water temperature is above 90℃).
 
WORKING CONDITION
*The max. admissible water pressure: 1.6MPa (16bar)
*Water temperature: up to 50℃

Maximum permissible error:
Between qt (included) and qs is ±2%;
Between qmin and qt (excluded) is ±5%.
NOTE: The technical data conform to ISO4064 standard, class B.
FLOW-ERROR CURVE


SPECIFICATION AND OVERALL DIMENSIONS
Description

Unit

Hydraulic data and dimensions

Nominal size

mm

15

20

25

inch

1/2

3/4

1

Overload flow-rate (qs)

m3/h

3

5

7

Permanent flow-rate (qp)

m3/h

1.5

2.5

3.5

Transitional flow-rate (qt)

m3/h

0.12

0.2

0.28

Minimum flow-rate (qmin)

m3/h

0.03

0.05

0.07

Max. reading

m3

99999.9999

99999.9999

99999.9999

Min. reading

m3

0.00005

0.00005

0.00005

Max. working pressure

MPa

1.6

1.6

1.6

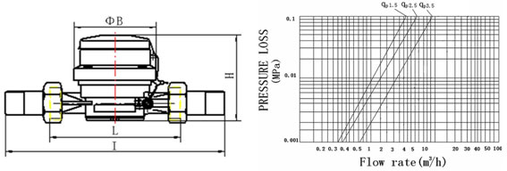
ΔP at the qs

MPa

≤0.1

≤0.1

≤0.1

L

mm

110

130

160

I

mm

190

234

280

H

mm

86

86

113

B

mm

81

81

94


OVERALL DIMENSIONS                                                                  PRESSURE LOSS CURVE

 

  All rights reserved: Lianyungang Lianli Water Meter Co.,Ltd. Tel: 0086-518-82341113 Fax: 0086-518-82340789
Add: Lianyungang economic and technological development zone, jiangsu, china
P.C: 222047 E-mail : lianli@zjser.com Support: Sooba.cn 
网站地图 www.17c-www17c.com-17.com.羞羞视频-17c.com在线观看完整版免费